Avgiftsfritt i 12 månader!
64 kvm
2 rok
4 210 kr/mån
2 395 000 kr
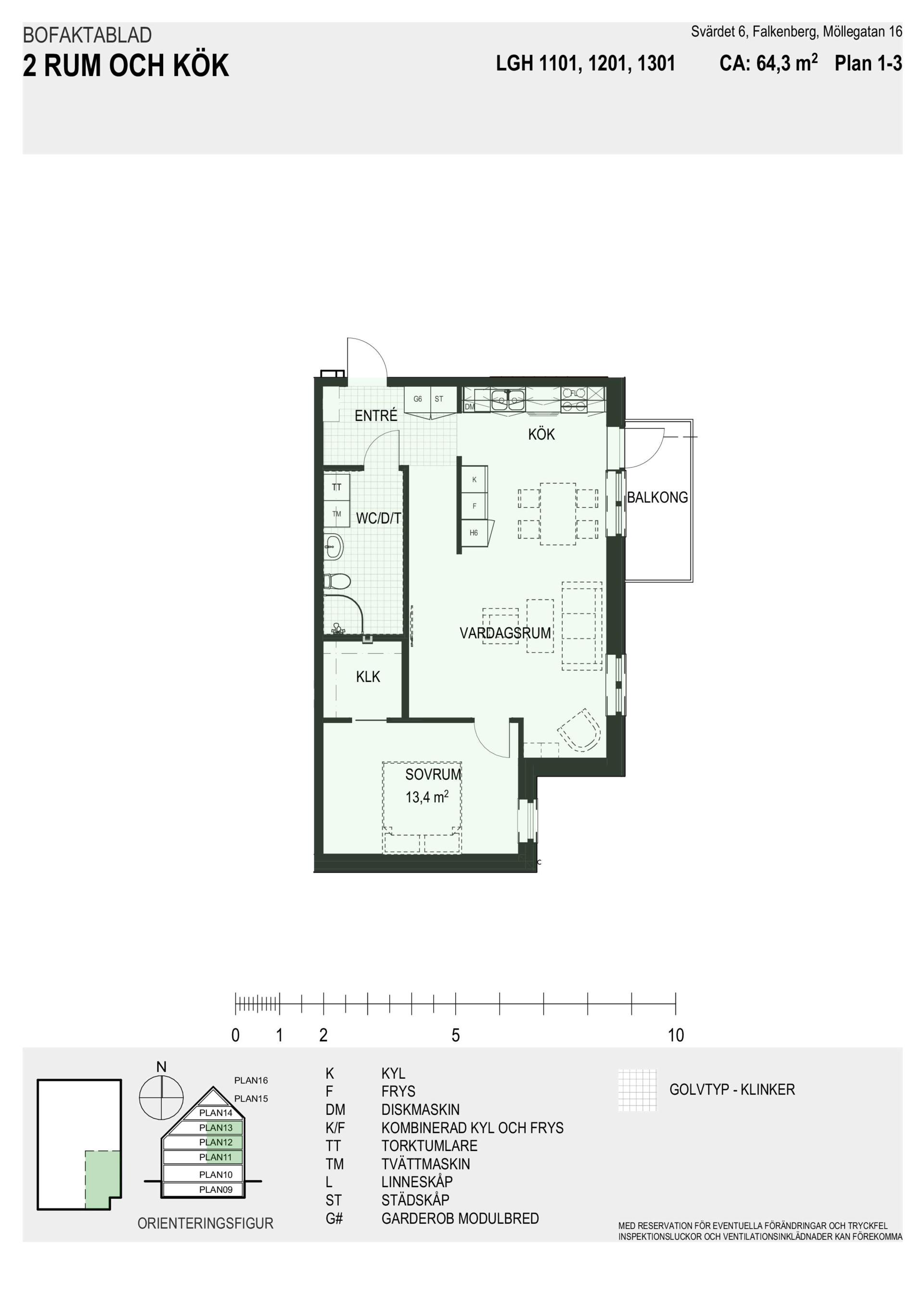
Mitt i Falkenbergs centrum med all tänkbar närservice runt knuten finner vi denna rymliga och ljusa tvårummare. Med cirka 65 kvadratmeter rymmer bostaden ett stort socialt kök i varm mellangrå kulör med gott om arbetsytor i öppen planlösning mot sällskapsrummet. Köket är fullutrustat och rymmer gott om förvaring. Via altandörren nås balkongen mot den skyddade innergården. I anslutning till vardagsrummet finner vi sovrummet med den väl tilltagna klädkammaren. I det helkaklade badrummet finns både tvättmaskin och torktumlare. Stilren färgsättning i grått och vitt. På Möllegatan 16 bor man nära centrumutbud, bussterminal, livsmedelsbutik och samtidigt med cykelavstånd till havet. Fri månadsavgift i 1 år! Just nu bjuder vi på månadsavgiften i 12 månader när du köper denna bostad. Varmt välkomna att kontakta oss för en visning av bostaden.
Läs mer
FAKTA
I månadsavgiften ingår bland annat värme, skötsel, amortering på bostadsrättsföreningens lån och avsättning till framtida yttre underhåll. 280kr tillkommer för media.
Fakta om bostaden
Byggnad
Våning/hiss
Balkong, uteplats & bilplats
Driftkostnader
lån och avsättning till framtida yttre underhåll. Hushållsel och vatten tillkommer enligt separat mätning.




























